종이 없는 서재/결정고시 모음
연지3 재개발사업 정비계획 결정 및 정비구역 지정 고시
a tekton
2024. 2. 19. 09:50
부산광역시 고시 제2024-34호
연지3 재개발사업 정비계획 결정 및 정비구역 지정 고시
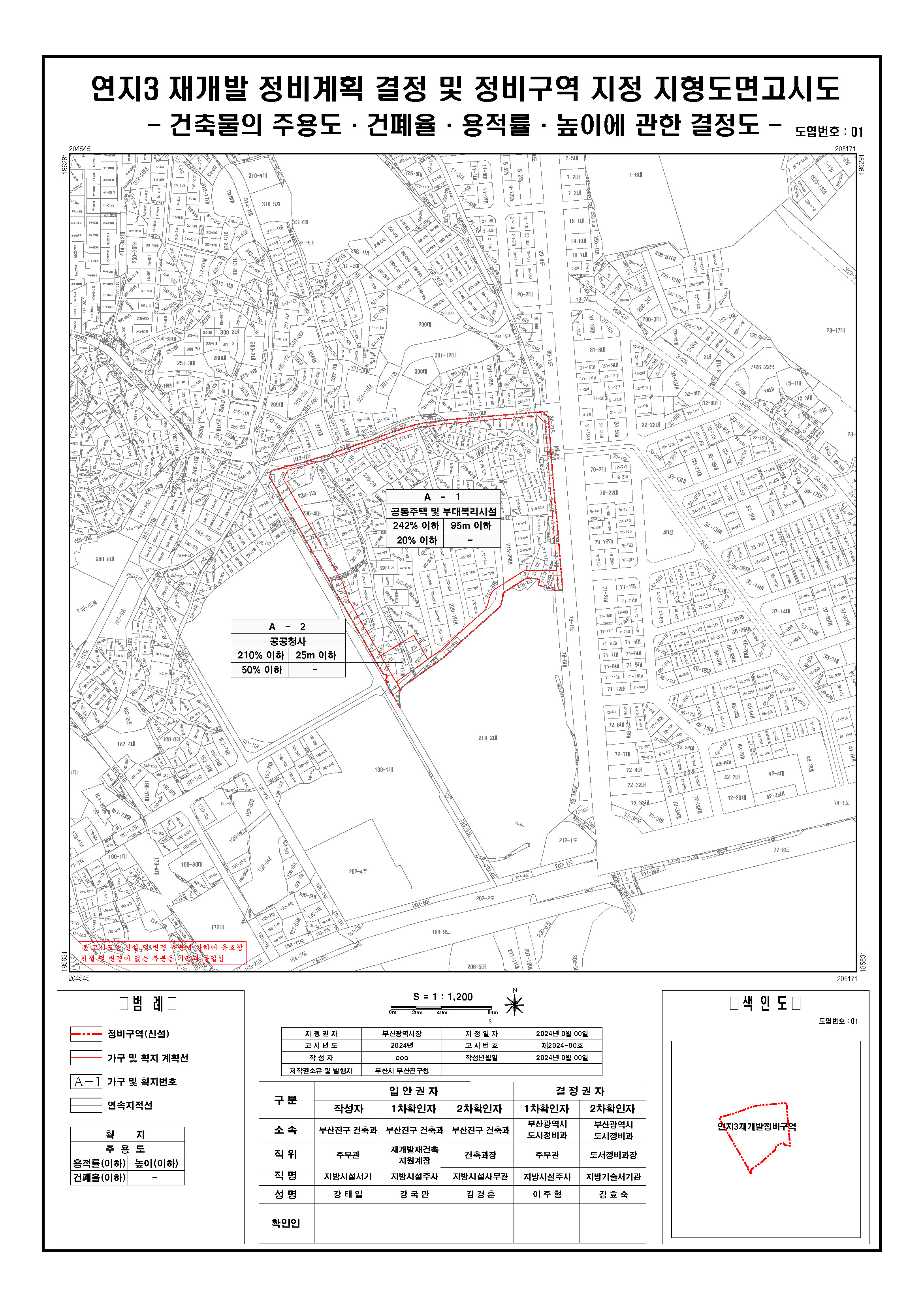
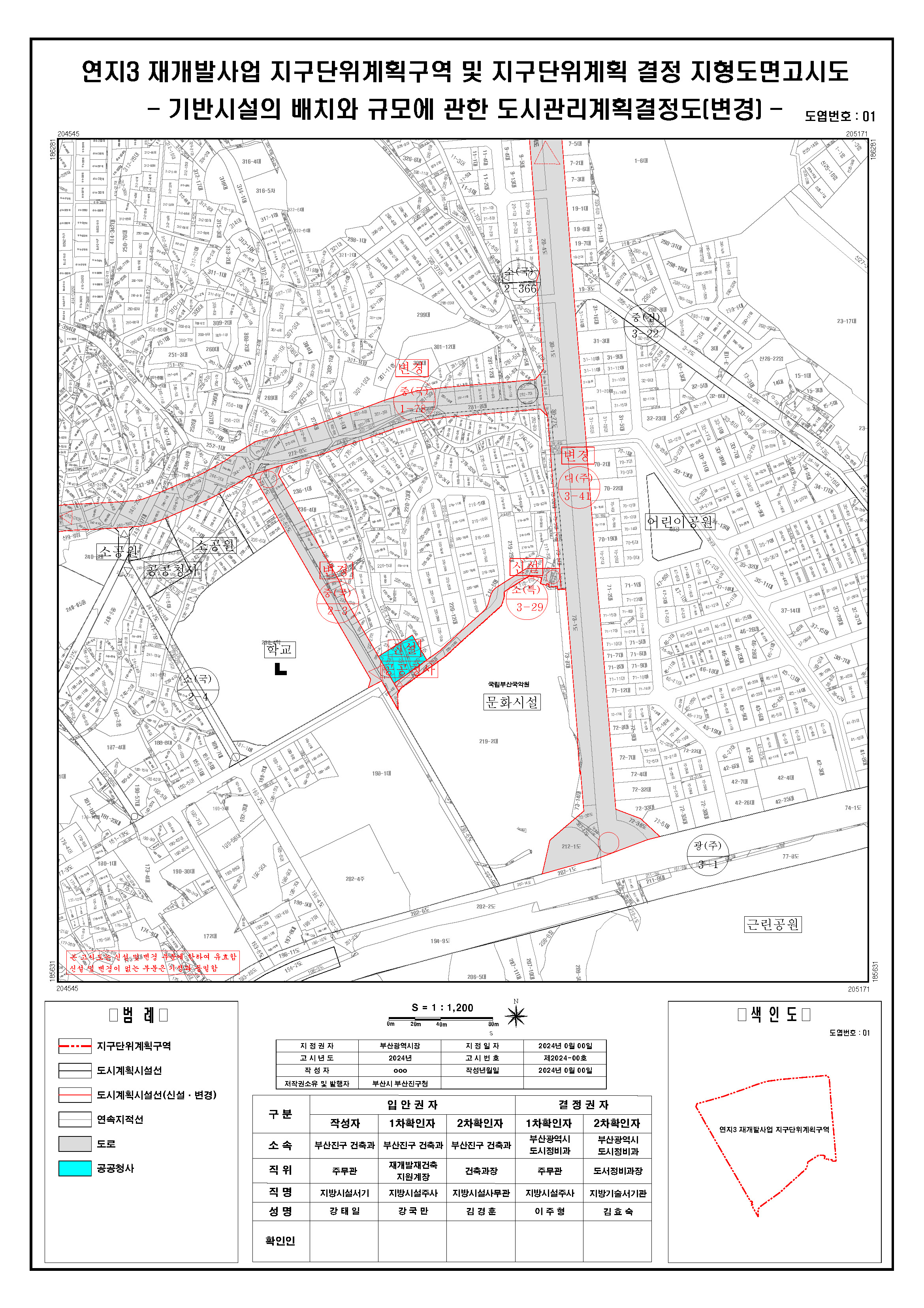
1. 부산광역시 부산진구 연지동 273-1번지 일원의 연지3 재개발 정비구역에 대하여 「도시 및 주거환경정비법」 제16조 규정에 따라 다음과 같이 정비계획 결정 및 정비구역 지정을 고시하며, 「토지이용규제 기본법」 제8조 및 같은 법 시행령 제7조 규정에 따라 지형도면을 고시합니다. 2. 관계도서(토지이음“http://www.eum.go.kr”에서 열람 가능)는 부산광역시 도시정비과(☏ 051-888-4234) 및 부산진구 건축과(☏ 051-605-8582)에 비치하여 일반인에게 보입니다.
2024년 02월 07일
부산광역시장























연지3 재개발사업 정비계획 결정 및 정비구역 지정 고시문(지형도면 포함).pdf
2.94MB